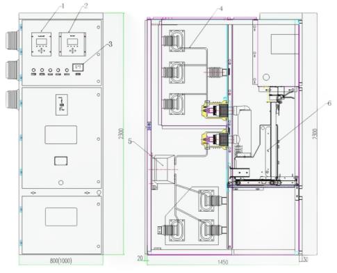
柜體結構
注:1、微機綜保2、WB-KQ控制器3、指示燈及帶電顯示4、柜內母排5、電流互感器6、快速開關
系統圖


工作原理
正常運行時,工作電源進線開關K1、備用電源進線開關K2處于合閘狀態,母聯開關K3處于分閘狀態。控制器實時監測工作、備用電源的同期狀態,符合并網條件時,快切功能解鎖;不符合并網條件時,快切功能閉鎖,并報警。
當工作電源系統發生開路(開關K偷跳)或短路(d點)故障時,并且工作、備用電源的同期性滿足并網條件,控制器命令K1跳閘,然后再命令K3合閘,實現結負荷供電的切換;故障解除后,可自動或手動返回。
產品參數
指標 | 參數 |
額定電壓 | 0.4KV/7.2KA/12KV/24KV/40.5KV |
適用系統額度電壓 | 0.38KV/6KV/10KV/20KV/35KV |
額度電流 | 1250A/1600A/2000A/2500A/3150A |
額度短路開斷電流 | 31.5KA/40KA/50KA/63KA/80KA |
額定短時(1min)工頻耐受電壓絕緣水平 | 2.5-95KV |
額定雷擊沖擊耐受電壓(峰值)絕緣水平 | 8.0-185KV |
額度頻率 | 50Hz |
額定分閘時間 | <2ms |
額度合閘時間 | <8ms |
最快切換時間 | <15ms |